物件詳細情報
| 交通 |
JR埼京線 / 戸田駅 徒歩10分 |
| その他交通 |
JR埼京線 / 北戸田駅 徒歩17分
|
| 所在地 |
埼玉県蕨市錦町2丁目 |
| 物件種目 |
貸マンション |
| 賃料 |
7.9万円 |
管理費等 |
5,000円 |
| 敷金 / 保証金 |
なし/なし |
礼金 |
なし |
| 敷引 |
- |
保証金償却 |
- |
| その他一時金 |
プレミアデスク(税込/2年):22,000円、 契約時ルームクリーニング代:60,500円、 鍵交換代等:38,500円~ |
保険等 |
加入要 / 2年間 20,000円 |
| 維持費等 |
- |
| 建物名・部屋番号 |
イクシオ錦町 0303 |
| 設備 |
モニタ付オートロック 宅配BOX システムキッチン 収納スペース バス・トイレ別室 室内洗濯機置場 クローゼット シューズボックス オートロック モニタ付インターホン 防犯カメラ IHクッキングヒーター 浴室乾燥機 洗面所独立 洗面所 洗面台 シャワー 洗濯機置場 都市ガス給湯 給湯 フローリング 都市ガス エアコン インターネット対応 インターネット使用料無料 温水洗浄便座 トイレ |
| 備考 |
賃貸保証等:加入要 Casa ※CASAからの審査になります。 【CASA】月額総賃料の70%(最低保証料20,000円)/月次保証料、月 額総賃料の1.5% 【アーク賃貸保証】月額総賃料の40%/次年度以降10,00 ★築浅デザイナーズマンション★ インターネット無料?(ファイハ゛ーケ゛ート) ■短期解約違約金:1年未満2カ月 ■解約予告:2カ月前 ■フ゜レミアテ゛スク代の中に登録料6,600円(税込)を含みます。 ■本物件は電子契約となります。
|
| エネルギー消費性能 |
- |
断熱性能 |
- |
| 目安光熱費 |
- |
|
|
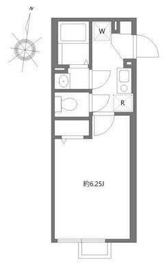
| 間取り |
1K(洋6.3) |
主要採光面 |
南 |
| 専有面積 |
20.10㎡ |
階建/階 |
3階建/3階 |
| 築年月 |
2023年9月(築2年5ヶ月) |
建物構造 |
鉄骨造 |
| 総戸数 |
- |
|
|
| 駐車場 |
- |
バイク置き場 |
- |
| 駐輪場 |
- |
ペット |
- |
| 契約期間 |
2年 |
現況 |
空家 |
| 条件等 |
- |
入居可能時期 |
即時 |
| 更新料 |
新賃料 1.5ヶ月 |
|
|
| 物件番号 |
1152484616 |
|
|
| 情報公開日 |
2025/10/22 |
次回更新予定日 |
2026/01/31 |
※「-」と表示されている項目については、情報提供会社にご確認ください。
情報提供会社
ピタットハウス川口店 (株)たちばなホーム
- 交通:
- JR京浜東北・根岸線/川口 徒歩3分
- 住所:
- 埼玉県川口市本町4丁目5-32 フジタ川口マンション1F
- TEL:
- 048-227-2220
- FAX:
- 048-227-2230
- 所属団体など:
| (公社)埼玉県宅地建物取引業協会会員 |
| (公社)首都圏不動産公正取引協議会加盟 |
- 取引態様:
- 仲介
- 免許番号:
- 埼玉県知事免許(10)第11354号
メールでお問い合わせ